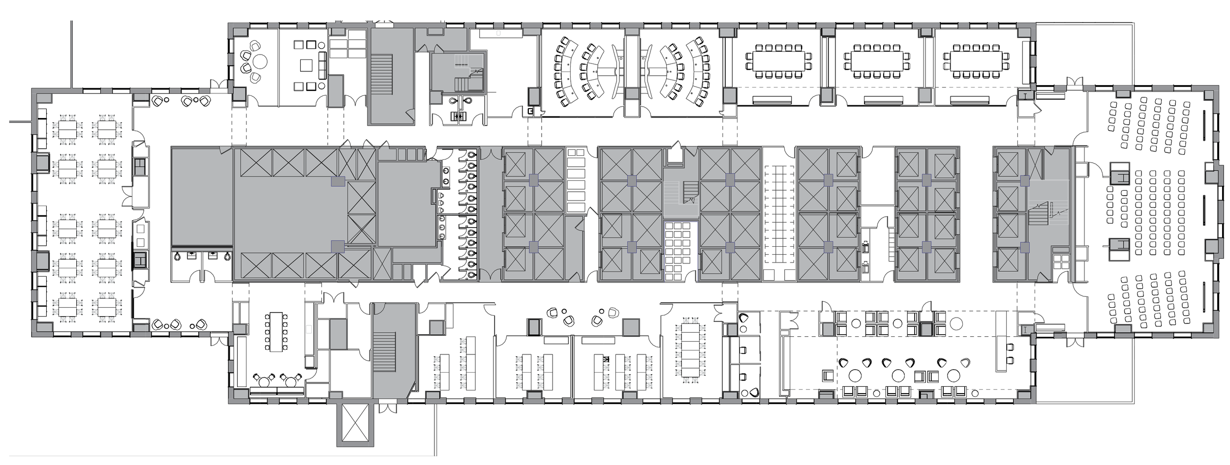
NBC 30 Rockefeller Center

New York, NY

photos courtesy of Gensler

learn more about our process